Hotline:
0907 786 100

Ngắm mẫu nhà đẹp thoáng đãng của gia đình nhiếp ảnh gia yêu cây xanh và vật liệu thô

The Tiamo House là ng trình nhà ở trên diện tích khu đất rộng 200m2, toạ lạc tại trung tâm thành phố Hà Tĩnh. ng trình được thiết kế theo yêu cầu của một nhiếp ảnh gia với đề bài rất đặc biệt: Không gian hướng nội cho loại hình nhà phố.

The Tiamo House sở hữu mặt tiền gạch nung độc đáo, nổi bật trong khu dân cư

Theo chia sẻ của nhóm KTS, đề bài của chủ đầu tư tạo rất nhiều bất ngờ và cảm hứng cho nhóm. Gia chủ mong muốn xây dựng kiểu không gian hướng nội cho loại hình nhà phố, giữ khoảng cách với bên ngoài, thu mình vào bên trong và gần gũi với thiên nhiên. Trên mảnh đất xây dựng đã có một vài cây xanh lâu đời nên gia chủ cũng mong muốn được giữ lại và đó là một nhiệm vụ quan trọng của nhóm KTS, thiết kế sao để phù hợp với hiện trạng. Lưu ý là các mẫu nhà phố này PNT Decor có thể áp dụng cho mẫu nhà của khách hàng ở phú quốc nhé! 

The Tiamo House nằm trong khu dân cư đông đúc tại trung tâm thành phố Hà Tĩnh 

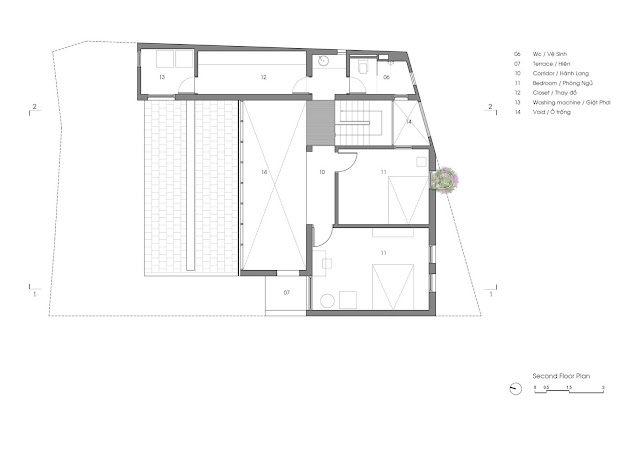
Từ yêu cầu “đặc biệt” của gia chủ, nhóm KTS đã lên ý tưởng về không gian nhiều lớp, tạo ra chiều sâu về không gian cho ng trình. Toàn bộ không gian sinh hoạt chung được mở ra, kết nối với thiên nhiên thông qua khoảng hiên dài. Nhờ vậy ánh sáng tự nhiên gián tiếp đi vào không gian chung được tiết chế dễ chịu hơn. Tầng 2 được thiết kế đơn giản gồm khối phòng ngủ và khối không gian phụ trợ, tối ưu về diện tích sử dụng. 

Mặt tiền gạch nung của ngôi nhà mang lại cảm giác gần gũi, thô mộc

Đây là vật liệu quen thuộc với kiến trúc truyền thống của Việt Nam, cách sắp xếp so le gạch giúp không khí lưu thông dễ dàng.

Để khắc phục tình trạng ngập lụt diễn ra thường xuyên ở thành phố, nhóm KTS đã nghiên cứu và thay đổi cao độ của ngôi nhà. Không gian gara, sân vườn phía trước được nâng lên vừa đủ để thuận tiện cho việc tiếp cận. Ngoài ra, một cầu thang ít bậc được bố trí để chuyển tiếp lên khu nhà chính. Giải pháp này giúp cho toàn bộ không gian sinh hoạt chính an toàn trong mùa mưa nhưng vẫn đem đến sự hài hoà, liền mạch cho tổng thể ng trình. 

Bên cạnh đó, không thể không nhắc đến những khoảng xanh và vật liệu xây dựng của ng trình. Chủ nhà là người có sự yêu thích với các loài cây cỏ, vật liệu thô mộc, đồ thủ ng. Do đó, ngoài sân vườn rộng rãi, vật liệu chủ đạo để xây dựng ngôi nhà là gạch trần, bê tông trần, đá mài, gỗ tự nhiên. 

Một khoảng sân trước kết hợp làm gara trở thành khoảng đệm hoàn hảo cho gian chính. Ngoài ra, một cầu thang ít bậc để nâng cao độ của gian nhà chính, tránh những ngày thành phố bị mưa ngập

Cửa chính được làm từ chất liệu gỗ mộc mạc, ấm cúng

Ngoài ra còn 1 lối khác từ gara dẫn lên cầu thang chính của ng trình

Tận dụng tiền sảnh làm nơi vui chơi cho 2 thành viên nhí trong nhà

Nhóm KTS sử dụng tường vách kính để tối ưu ánh sáng tự nhiên từ sân vườn

Không gian phòng khách rộng thoáng nhờ trần cao và kết nối với sân vườn

Phòng khách - bếp ăn chung trên một mặt sàn, kết nối trực tiếp với sân vườn 

Nhờ khoảng hiên rộng mà ánh sáng chiếu vào bên trong nhà vừa phải, không quá gay gắt

Ngăn cách giữa 2 không gian là hệ cửa kính ray trượt, kết hợp với mành tre mang đậm văn hoá Việt Nam

Mành tre không chỉ thể hiện sự gần gũi, mà nó còn che chắn hiệu quả dưới cái nắng nóng gay gắt của miền Trung

Sân sau rộng rãi, không chỉ có cây cối xanh mướt mà còn có một hồ nước nhỏ, hệt như một ngôi nhà 3 gian ở quê yên bình 

Mái ngói gạch nung đậm chất Việt, thiết kế dạng dốc rất hiệu quả trong việc cản nắng và điều tiết nước mưa

Khu vực cầu thang kết nối gara - không gian sinh hoạt chung và riêng tư. Sự sắp xếp này cũng giúp cho các thành viên có sự kết nối với nhau 

Khu vực cầu thang nhận được nhiều ánh sáng tự nhiên bởi được bố trí vách kính cỡ lớn, mặt tiền gạch nung điều tiết ánh nắng chiếu vào bên trong hiệu quả

Hành lang cầu thang được làm từ những lam gỗ

Từ hành lang tầng 2 có thể dễ dàng quan sát các thành viên ở các không gian khác

Phòng ngủ master được bài trí đơn giản, có một ban công nhỏ nhìn ra phố, được trồng cây hoa giấy rất đẹp

Phòng ngủ của các con ở bên trong nên có cửa sổ kết nối ra sân vườn của ngôi nhà để phòng không bị bí bách, thiếu ánh sáng 

Phòng vệ sinh phân chia khu vực khô - ướt riêng biệt rất tiện nghi 

 

Bản vẽ mặt cắt ng trình 

The Tiamo House là mẫu nhà đại diện cho phong cách sống của những con người sống trong ngôi nhà đó. Tuy ở trung tâm thành phố, nhưng ng trình vẫn toát lên sự thô mộc, giản dị, gần gũi với thiên nhiên như chính con người của gia chủ, để khi trở về ngôi nhà sẽ là nơi êm đềm, an yên nhất. 

Nào hãy cùng PNT Decor tham khảo ý tưởng mới để áp dụng cho ngôi nhà của mình ở phú quốc nhé. Đừng quên hotline quen thuộc 0937.677.001 hoặc 0907.786.100 để được đội ngũ KTS giàu kinh nghiêm tư vấn nhé!

Nếu Bạn muốn nhận các mẫu thiết kế tương tự như ng trình trên có thể liên hệ ngay với PNT Decor qua hotline 0937.677.001 hoặc 0907.786.100 để được tư vấn nhé

Office: 139 Đoàn Thị Điểm, Kp12, Dương Đông, Phú Quốc, Kiên Giang

Thông tin ng trình:

Tên ng trình: The Tiamo House

Địa điểm: Thành phố Hà Tĩnh 

Diện tích: 200m2

Đơn vị thiết kế : Dom Architect Studio

Kiến trúc sư phụ trách : Nguyễn Anh Đức, Trương Anh Đức

Kỹ sư kết cấu : Nguyễn Sơn

Xây dựng : Trần ng Hậu

Thầu Phụ : Lalam Cons, Điện nước Nam Hải, Sắt Nam Cường, đá mài anh Thành, gỗ anh Thanh

Hình ảnh : Hoàng Lê

Năm dự án: 2020 - 2021

Bài viết: Khánh Linh

 

 

 

 

 

Tìm kiếm sản phẩm
Dưới 100.000.000 VND
100.000.000-500.000.000 VND
500.000.000-1.000.000.000 VND
1.000.000.000-20.000.000.000 VND
20.000.000.000-50.000.000.000 VND
50.000.000.000-100.000.000.000 VND
Trên 100.000.000.000 VND
van_phong_cong_ty_thiet_ke_xay_dung_quoc_annhn_kim_tra_quy_hoch_t_ph_quc.300
Kết nối với chúng tôi
Thống kê truy cập
Đang truy cập: 16
Trong ngày: 430
Trong tuần: 3372
Lượt truy cập: 1413725
banner_kiem_tra_quy_hoach300chuyenvientuvan300
Liên hệ ngay với chuyên viên tư vấn qua Hotline
0907 786 100

Thông tin liên hệ chuyên viên tư vấn

Chuyên viên tư vấn là công ty chuyên về lĩnh vực bất động sản bao gồm tư vấn đầu tư, xây dựng,thiết kế nội ngoại thất,.... Với kinh nghiệm chuyên môn sâu sắc, đội ngũ nhân viên giàu kinh nghiệm, quy mô trên cả nước. Chuyên viên tư vấn định hướng phát triển bền vững và duy trì chất lượng dịch vụ tốt để luôn khẳng định là nhà chuyên viên tư vấn uy tín nhất Việt Nam. Nhận kiểm tra quy hoạch miễn phí đất tại Phú Quốc!
Điện thoại: 0907 786 100
Địa chỉ: 139 Đoàn Thị Điểm,Khu phố 12, Thị trấn Dương Đông, Phú Quốc, Kiên Giang
Email: khanhluu2110@gmail.com

Copyright 2012 by Daniel Luu. All Rights Reserved. HOTLINE 0907 786 100

1
Bạn cần hỗ trợ?